Aktualności / Archiwizowanie, kontemplowanie, wojowanie
Archiwizowanie, kontemplowanie, wojowaniePomiędzy warszawską dzielnicą Ochota, polaną na północnym zboczu góry Pilsko, a podkrakowską miejscowością Rząska rozegrał się finał XXVI edycji dorocznego ogólnopolskiego konkursu „Architektura Betonowa” – akademicka nagroda za najlepszą pracę dyplomową roku – projekt architektoniczny z użyciem technologii betonu. Uroczystość miała miejsce 27 października 2025 roku na Wydziale Architektury Politechniki Krakowskiej. Jury konkursu przyznało trzy równorzędne nagrody i trzy wyróżnienia.

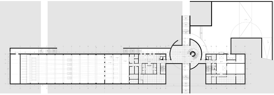
Inż. Bartłomiej Głomski z Wydziału Architektury Politechniki Warszawskiej otrzymał nagrodę za pracę „Rozbudowa Archiwum Państwowego na warszawskiej Ochocie o pawilon edukacyjny z zapleczem do archiwistyki społecznej” (promotor: prof. dr hab. inż. arch. Jan Słyk). W Polsce wiele publicznych instytucji zajmujących się archiwizowaniem dokumentów, kolekcjonowaniem dzieł sztuki czy udostępnianiem książek funkcjonuje do dziś według reguł wypracowanych w czasach, w których celem było przede wszystkim chronienie gromadzonych dóbr kultury, a więc niedopuszczanie do tajemnic instytucji przeciętnego śmiertelnika. Odwiedzający muzea, korzystający z dużych publicznych bibliotek czy różnego rodzaju archiwów, niejednokrotnie mogą poczuć się w nich jak intruzi albo niechciani goście. Jest to skutek zbyt rozbudowanych biurokratycznych procedur dostępu albo nieprzyjemnej, nieprofesjonalnej obsługi. Sama architektura tego typu obiektów odpowiadała przede wszystkim na potrzebę zamknięcia cennych artefaktów w niedostępnym skarbcu. Jednak zmiana priorytetów w archiwistyce czy muzealnictwie odbywa się, chociaż powoli, pod wpływem idei i rozwiązań płynących z Zachodu. Można tam obserwować proces otwierania się instytucji na obywateli. Procedury korzystania ze zbiorów są maksymalnie uproszczone i komfortowe, przy zachowaniu wymogów kontroli i bezpieczeństwa. Jest to proces zachodzący nie tylko w mentalności pracowników – materialnym przejawem tej zmiany jest architektura. Autor nagrodzonej pracy zainteresował się archiwami i archiwistyką, pracując w ramach wymiany studenckiej w jednym z zachodnich biur architektonicznych. – Zainteresował mnie przygotowywany w pracowni projekt budynku, który był wysoko zautomatyzowanym magazynem, a mimo to nie był pudełkiem zamkniętym dla publiki. Do tego z pozoru zamkniętego budynku architekci starali się wprowadzić wiele elementów, które pozwalały ludziom z zewnątrz wejść do środka i zajrzeć do tych procesów – mówi Bartłomiej Głomski. Podróżując po Europie, autor zwrócił uwagę na budynki archiwów, w których bezpośredni kontakt z materiałem historycznym był bardzo łatwy, przy jednoczesnym wykorzystaniu nowoczesnych form monitorowania i zabezpieczania zbiorów. Jako przykład podaje otwarte i przyjazne archiwum miejskie w Amsterdamie albo nowe archiwum w Kolonii. Funkcjonowanie tych instytucji niekiedy kontrastuje z funkcjonowaniem podobnych placówek w Polsce. – Jest to tym ważniejsze, że nasza historia spaja nas jako naród, a kontakt z nią mamy w pewien sposób utrudniony – mówi architekt. Tematem pracy inżynierskiej uczynił rozbudowę budynku Archiwum Akt Nowych w Warszawie. Istniejące archiwum zostało zaprojektowane przez Bohdana Pniewskiego jeszcze w latach pięćdziesiątych i jest przykładem ewolucji stylu jednego z najbardziej wyrazistych polskich architektów pierwszej połowy XX wieku. Ten monumentalny gmach jest – przede wszystkim – świadkiem wielkich i burzliwych przemian w polskiej architekturze, jakie miały miejsce wraz z odchodzeniem od doktryny stalinowskiego socrealizmu. Projektowany był jeszcze w duchu zdobnej ornamentyki, ale budowany już w okresie politycznej odwilży. Pierwotny projekt został przez Pniewskiego gruntownie przekształcony w duchu nowoczesności, a bogata dekoracja odrzucona na rzecz czystej racjonalności, a nawet awangardy. Projekt rozbudowy archiwum przygotowany przez Bartłomieja Głomskiego jest niskim pawilonem, który stoi za wielkim budynkiem magazynowym Archiwum Akt Nowych. Jak mówi architekt, połączenie z istniejącym kompleksem musiało być delikatne i wrażliwe, dlatego pawilon jedynie uzupełnia oś urbanistyczną o element, który skalą „kłania się” przed budynkiem magazynu jako dominantą przestrzenną. Ze względów konserwatorskich wyraźne połączenie pawilonu z magazynem (a więc ingerencja w jego strukturę budowlaną) było niemożliwe, dlatego obiekty zostały połączone podziemnym łącznikiem. Budynek Bohdana Pniewskiego składa się z dwóch bardzo wyraźnie wyodrębnionych części: niskiej rotundy zbudowanej na planie koła (w niej są udostępniane zbiory) i wysokiego, zamkniętego bloku magazynowego zbudowanego na planie prostokąta. W projekcie inż. Głomskiego można znaleźć subtelne odniesienia do istniejącego archiwum. Betonowe prefabrykaty na elewacji pawilonu nawiązują do tynkarskiego opracowania wnętrz rotundy. Jest to swoisty hołd dla detalu, którego Pniewski był mistrzem. – Był on mistrzem kamienia, ale współcześnie kamień jest drogi i luksusowy. Przy obecnych możliwościach betonów architektonicznych jesteśmy w stanie utworzyć szlachetną powierzchnię, która będzie dobrze się starzeć, a więc nawiązywać do tego, o czym jest budynek – że skrywa on skarby naszego dziedzictwa – tłumaczy architekt. W zamyśle projektanta pawilon na pewno nie będzie kolejną „ikoną” architektury. Przeciwnie. Stonowany, architektonicznie wyciszony, byłby elementem wprowadzającym ład w nieuporządkowane otoczenie, na które składają się socmodernistyczne osiedle mieszkaniowe, mało wartościowe hale targowe z lat osiemdziesiątych czy budynki kampusu Warszawskiego Uniwersytetu Medycznego. – Działka jest w posiadaniu archiwów, więc istnieje możliwość rozbudowy. Mój projekt byłby interwencją, która otwiera archiwum w kierunku kampusu WUM-u, a więc tę część Ochoty, która najbardziej dynamicznie się rozwija – mówi autor koncepcji. Z uwagi na chaos urbanistyczny i architektoniczny panujący w okolicy architekt zdecydował, że interwencja powinna być bardzo stonowana. W projekcie odniósł się nawet do całkiem prozaicznych elementów najbliższego otoczenia. Idąc tym tropem, w strefie cokołowej pawilonu, pomiędzy przeszkleniami, pojawia się szara cegła cementowa. – Jest to nawiązanie do garaży ciągnących się przez sąsiednie osiedla, którymi na co dzień się nie chwalimy, ale one są taką tkanką łączną, którą akceptujemy w mieście. W ten sposób nawiązuję do codzienności Ochoty i walorów osiedli z wielkiej płyty, które mają pewne zalety i nie powinniśmy nad nimi tylko ubolewać – mówi architekt. Przejdźmy do funkcjonalności pawilonu, ponieważ właśnie w niej autor zawarł idee związane z nowocześnie rozumianą archiwistyką. Dwie z nich wydają się kluczowe. Pierwszą byłoby maksymalne otwarcie struktury pawilonu, czyli stworzenie miejsca, które zaprasza, aby wejść do środka. Dużą część parteru zajmują przestrzenie dydaktyczne i wystawiennicze. Drugą ideą byłoby „wyprowadzenie na światło dzienne” procesów związanych z samym funkcjonowaniem instytucji, a więc pokazanie wszystkim zainteresowanym zasad jej działania. Wyzwaniem, jakie obecnie stoi przed archiwami, jest digitalizacja zbiorów i właśnie ten proces, między innymi, miałby się odbywać w nowym pawilonie. – Jest to element, którego u nas bardzo brakuje, czyli ekspozycja procesów i tej pracy archiwistów, która umożliwia nam, śmiertelnikom, zajrzenie do materiałów archiwalnych – tłumaczy autor nagrodzonej pracy. Ciekawostką jest, że archiwum zdigitalizowało jak dotąd około 1 procent swoich zasobów, czyli proces digitalizacji wszystkiego potrwa (prawdopodobnie) nawet osiemset lat. Przestrzenie ukazujące pracę archiwistów i funkcjonowanie archiwum architekt umieścił na piętrze. – Pomysł polegał na tym, żeby spleść ze sobą te dwie części, nałożyć je na siebie, żeby spotkały się pośrodku tej przestrzeni, do której każdy miałby dostęp. Mieszkaniec czy obywatel mógłby zajrzeć do tego procesu jak do akwarium, jak również uczestniczyć w wydarzeniach organizowanych przez archiwum. Proces i praca archiwistów jest tu postawiona na równi z wartością materiału archiwalnego – wyjaśnia architekt. Jednocześnie podkreśla, że w dobie coraz bardziej zautomatyzowanych procesów i rzeczywistości wirtualnej jeszcze większej wartości nabiera fizyczny kontakt człowieka ze zgromadzonym materiałem archiwalnym. W wyobrażeniu Bartłomieja Głomskiego archiwum, jako instytucja publiczna, jest miejscem nie tylko przyjaznym i otwartym dla publiczności. Ma też inny, nieoczywisty wymiar – staje się archiwum społecznym. Oznacza to współtworzenie zasobu archiwalnego przez obywateli. Idea jest związana z przemianami społecznymi, za którymi klasycznie rozumiana archiwistyka, skupiona na oficjalnych dokumentach tworzonych przez różnego rodzaju instytucje, nie nadąża. Coraz więcej świadectw (które w przyszłości mogą mieć znaczenie historyczne) jest tworzonych w nowych mediach przez osoby prywatne albo różne grupy społeczne. Wymyka się to tradycyjnie rozumianej definicji dokumentu. – To, co archiwizujemy, powinno jak najlepiej odzwierciedlać nasze społeczeństwo, aby za sto lat ludzie mieli dobrą wizję tego, co się działo i kim jesteśmy – mówi architekt. Pawilon został zaprojektowany z betonu. Dla Bartłomieja Głomskiego beton jest przede wszystkim materiałem trwałym, którego nie trzeba wymieniać co dziesięć-dwadzieścia lat. Trwałość ma znaczenie, jeżeli mówimy o zrównoważonej architekturze. Jest szczególnie ważna w budynkach użyteczności publicznej. W betonie architektonicznym można stosować kruszywa z recyklingu, a więc korzystać ponownie z budulca, który niesie ze sobą jakąś historię zakutą w materiale. Na elewacji pawilonu architekt zaproponował beton z różnym stopniem wyeksponowania kruszywa.– Patrząc czysto pragmatycznie, jest to bardzo wytrzymały materiał, który pomógł mi pokonać spore rozpiętości i osiągnąć swobodne i łatwo adaptowalne plany na funkcje wystawiennicze, mógł też unieść obciążenia ze składowanych tymczasowo na pierwszym piętrze materiałów i sprzętu do digitalizacji i pracy z zasobami – podsumowuje autor.

Arch. Katarzyna Kuternak z Wydziału Architektury Politechniki Śląskiej otrzymała nagrodę za pracę „Muzeum Emocji jako forma land artu – architektura ciszy i refleksji w Beskidzie Żywieckim” (promotor: dr inż. arch. Jerzy Wojewódka, prof. PŚ). W ostatnich latach w Polsce obserwujemy zaskakującą na pierwszy rzut oka prawidłowość. Z jednej strony społeczeństwo bogaci się i proces ten przebiega, mimo kryzysów, bardzo systematycznie, co najmniej od chwili przystąpienia kraju do Unii Europejskiej. Pokazują to obiektywne dane ekonomiczne. Dobra i usługi stają się coraz powszechniej dostępne. Rynek pracy pozwala na tak zwaną samorealizację w znacznie większym stopniu niż dwadzieścia lat temu. Podróżowanie i poznawanie świata stało się dostępne nieomal dla każdego i jest nieomal narodowym sportem. Cywilizacja materialna ułatwiająca codzienne życie, jak infrastruktura, komunikacja, budownictwo, przestrzenie publiczne w miastach, szybko się rozwija. Nie zapominając o ludziach, którzy żyją w niedostatku, i obszarach, w których rozwój gospodarczy jest słabszy, można pokusić się o generalną refleksję, że stajemy się społeczeństwem dobrobytu w podobnych warunkach jak społeczeństwa zachodnie. Z drugiej strony na alarm biją psychologowie. Ludzie, których obiektywnie stać na więcej i którzy coraz mniej czasu muszą poświęcać na pokonywanie trudów życia, stają się coraz bardziej nieszczęśliwi. Mówi się o wielkim kryzysie zdrowia psychicznego i epidemii depresji. Rośnie popularność grupowych i indywidualnych terapii psychologicznych o różnych, trudnych do zapamiętania nazwach. Ludziom sukcesu, którym nie powinno niczego brakować, towarzyszy chroniczne zmęczenie. Półki w sklepach są wypełnione poradnikami szczęśliwego życia. Terapie dla tych, którzy znaleźli się w psychicznym dołku, stały się tak powszechne, że można je uznać za biznes z perspektywami na przyszłość. Popularność zyskują techniki medytacyjne adaptowane z kultur azjatyckich i uproszczona pop-psychologia, przejawiająca się w seansach coachingu. Refleksja nad kondycją psychiczną, czy szerzej – duchową, współczesnego człowieka, jest punktem wyjścia projektu architektonicznego Katarzyny Kuternak. Autorka zwraca uwagę na zjawiska, które przyczyniają się do duchowych kryzysów; jednym z nich jest przeciążenie spowodowane natłokiem bodźców, informacji, obrazów i dźwięków (m.in. w telefonach, komputerach, mediach społecznościowych). Wiąże się z tym presja płynąca ze środowiska pracy, aby zawsze być aktywnym, dostępnym, efektywnym. – Zatracamy zdolność bycia tu i teraz. Spokój i cisza stają się coraz trudniej osiągalne, a ich brak prowadzi do przebodźcowania, chronicznego stresu, wypalenia i utraty kontaktu z samym sobą – mówi autorka nagrodzonej pracy. Projekt muzeum emocji uważa za wypowiedź bardzo osobistą, na pewno osadzoną w osobistym doświadczeniu. Architektka jest miłośniczką górskich wycieczek, w których ważny jest sam trud pokonywania drogi (niekoniecznie nakierowanie na jakiś konkretny cel); zmęczenie fizyczne uspokaja organizm i wycisza zmysły, a atmosfera pozwala na autentyczną bliskość z ludźmi i przyrodą. Wędrówka po górach może być remedium na przeciążenie codziennością. Nie bez znaczenia jest świadome odcięcie się na jakiś czas od mediów społecznościowych. Jako miejsce zadania projektowego Katarzyna Kuternak wybrała Halę Jodłowcową na północnym grzbiecie góry Pilsko w Beskidzie Żywieckim, na wysokości ponad 1100 m n.p.m. Aby dotrzeć na miejsce, należy wyruszyć zielonym szlakiem, który prowadzi z Sopotni Wielkiej na Halę Miziową – i po drodze trochę się zmęczyć… Miejsce, które autorka wybrała jako lokalizację założenia projektowego, znajduje się nie przy samym szlaku, lecz kilkadziesiąt metrów wyżej, na zboczu, w płytkim, sztucznie wykonanym wąwozie. Decyzja ta była wynikiem dyskrecji. „Architektura ciszy i refleksji” nie powinna być z definicji strukturą narzucającą się – jej obecność w krajobrazie została jedynie zaznaczona, z szacunku do piękna gór i przyzwyczajeń ludzi. Tylko od indywidualnej decyzji zainteresowanych będzie zależeć, czy porzucą znakowany szlak i zdecydują się, przynajmniej przez chwilę, wziąć udział w zaskakującej duchowej przygodzie. W wąwozie długim na około dwieście metrów i głębokim na około trzy i pół metra Katarzyna Kuternak stworzyła miejsce wyciszenia i kontemplacji. Nie jest to budynek, ale rodzaj rzeźby albo interwencji przeprowadzonej w duchu land artu, czyli sztuki ziemi. Ten nurt sztuki współczesnej, zrodzony w Stanach Zjednoczonych w okresie kontrkultury, zakłada tworzenie w bardzo bliskim kontakcie z krajobrazem, z uwzględnieniem niepowtarzalnych, jednostkowych walorów danego miejsca. Dzieło i miejsce stanowią jedność, również dlatego, że dzieło powstaje z użyciem materiałów, znajdujących się na miejscu, jak kamienie, ziemia, drewno czy piasek. Architektura zaprojektowana przez Katarzynę Kuternak nie ma żadnej użytkowej funkcji – jest sekwencją ścieżek, otwarć, zamknięć, kładek, wnęk i kubatur. Nie istnieje ściśle określony scenariusz ani szlak, według którego należy poznawać obiekt. Można przemierzyć tę architektoniczną interwencję od wejścia do wyjścia, zaglądając po kolei, z poziomu zagłębionego wąwozu, we wszystkie zakamarki przestrzennej rzeźby. Można rozpocząć spacer w środkowej części założenia i przejść tylko fragment. Można przemierzyć większą część drogi po betonowych pomostach zbudowanych w poziomie terenu. Można, a w pewnych miejscach trzeba zawrócić lub zmienić kierunek, aby nie pominąć innego fragmentu drogi, ponieważ architektka świadomie myli tropy, aby trochę utrudnić człowiekowi orientację w terenie. Takie momenty zawahania mają pomóc w wyzwoleniu się z automatyzmu reakcji i w świadomym przeżywaniu bieżącej chwili. W założeniu autorki wędrówka przez kolejne sekwencje wielkiej ziemno-skalno-betonowej rzeźby jest w gruncie rzeczy podróżą w głąb siebie. Odbywa się ją we własnym tempie i zgodnie z własnymi potrzebami. – Uważam, że architektura jest nośnikiem emocji, dlatego poprzez kreowanie różnych przestrzeni można wpływać na stany emocjonalne człowieka – mówi architektka. – Emocje, które targają ludźmi, były dla mnie ważne. Przy pomocy takich zabiegów jak światło i cień, wielkość kubatur, wysokość zadaszeń, faktura materiałów, stworzyłam teoretycznie bardzo prostą formę, ale ktoś, kto przez nią przechodzi, w różnych miejscach odczuwa różne emocje – tłumaczy. Ściany wąwozu (sztucznie wydrążonego żlebu) zostały obłożone rodzimymi kamieniami, zebranymi z okolic szlaku turystycznego. Skały nadają całości charakter krajobrazowy. Osią założenia jest trakt pieszy prowadzący przez kolejne strefy ciszy i kontemplacji. Ścieżka w żlebie zwęża się lub rozszerza, tworząc nieregularne wnęki i nisze. Pośrodku traktu została zaprojektowana betonowa konstrukcja w formie pionowych ścian oporowych, a betonowe kładki, którymi można się przemieszczać w pełnym słońcu w poziomie terenu, pełnią równocześnie funkcję zadaszenia dla schowanej w głębokim cieniu ścieżki, biegnącej wąwozem. Punktami kulminacyjnymi wędrówki przez muzeum emocji są cztery betonowe wnętrza, nazwane przez autorkę pomieszczeniami ciszy. Wszystkie mają formę zasadniczo zamkniętych prostopadłościanów. Zasadniczo – ponieważ w każdej bryle znajdują się małe geometryczne prześwity. Prześwity pełnią rolę okien albo ram kadrujących przestrzeń zewnętrzną. W pierwszym prostopadłościanie poziome rozcięcie otwiera widok w kierunku Babiej Góry i Tatr. W drugiej kubaturze oculus otwiera się na niebo. W trzeciej bryle widok jest kadrowany przez dwa wąskie pionowe wycięcia w ścianie i suficie. Najbardziej intymne wydaje się czwarte pomieszczenie, gdzie snop światła wpada do wnętrza tylko przez punktowy otwór na styku sufitu i ściany. Wyreżyserowane przez projektantkę otwory bardzo zawężają pole widzenia i kierują uwagę odbiorcy tylko na jedną, wybraną perspektywę, sprzyjając koncentracji i skupieniu. Mimo że autorka projektu nie odnosi się w swojej pracy bezpośrednio do kwestii religijnych, sugeruje analogię między przystankami ciszy a kapliczkami przy dawnych szlakach pielgrzymkowych. Również one, osadzone w naturalnym krajobrazie (i zbudowane w formach nienarzucających się), dawały wędrowcom wytchnienie. W projekcie Katarzyny Kuternak światło jest traktowane jako jeden z najważniejszych, może najważniejszy czynnik kształtujący przestrzeń architektoniczną. Autorka poświęca światłu wiele uwagi, badając jego rolę w historii architektury, od gotyckich katedr i innych świątyń, po dwudziestowieczne budynki powstałe w nurcie brutalizmu. Światło ma znaczenie przede wszystkim w odczuwaniu architektury, wpływając na emocje odbiorcy. W przestrzennej rzeźbie na zboczu góry Pilsko światło jest wykorzystane w kolejnych sekwencjach na zasadzie kontrastów: ciemne wnętrza, jasne zewnętrza, formy zamknięte i otwarte, przejścia pod zadaszeniami, otwarte nisze, miejsca częściowo osłonięte (gdzie światło wnika w kontrolowany sposób) i takie, do których wpada bezpośrednio. Wnętrza czterech kubatur są penetrowane przez światło, wnikające przez wąskie szczeliny i małe otwory. Właśnie w tych wnętrzach można wyraźnie obserwować dynamikę światła, zmienność jego intensywności i kątów padania w różnych porach dnia. Obserwacja tych zjawisk może mieć pewne znaczenie terapeutyczne, podobnie jak inne rozwiązania przestrzenne zaproponowane przez architektkę. Projekt muzeum emocji jest propozycją raczej teoretyczną czy filozoficzną niż projektem możliwym do realizacji. Ten manifest można rozumieć jako protest przeciwko cywilizacji, która rozprasza, i jako głos za cywilizacją, która pozwala na autentyczną obecność: świadomą, spokojną, zakorzenioną, głęboką. W projekcie autorka wykorzystała beton. – Szczerze mówiąc nie wyobrażałam sobie użycia żadnego innego materiału – deklaruje. – Beton dobrze się starzeje, dlatego mój projekt jest trochę, powiedziałabym, zestarzały, jeśli chodzi o wizualizacje – dodaje. Beton był używany m.in. w architekturze brutalistycznej, którą Katarzyna Kuternak ceni i przywołuje jako ważny punkt odniesienia. W estetyce brutalizmu materiał jest niedoskonały, masywny, szczery. Skupiamy się na podstawowych zmysłach: dotyku, akustyce, zapachu, świetle – i to może uwodzić. Brutalizm z pewnością silnie oddziałuje na stany ducha, chociaż można mieć bardzo poważne wątpliwości, czy uspokaja człowieka. Z pewnością muzeum emocji zaprojektowane na zboczu góry idzie zupełnie inną drogą, jeśli chodzi o pracę z emocjami. Zostało poświęcone wyciszeniu, refleksji i introspekcji.

Inż. Beata Cudzich z Wydziału Architektury Politechniki Krakowskiej otrzymała nagrodę za pracę „Centrum Bezpieczeństwa i Przygotowania Fizycznego »Strefa Vanguard« – Kraków Zabierzów” (promotor: dr inż. arch. Bartosz Dendura). Słowo „vanguard” w tytule pracy można rozumieć jako oddział wojska idący na przedzie, czoło kolumny, forpocztę albo straż przednią. Skąd u autorki zainteresowanie tematem? – Z obserwacji współczesnych wyzwań geopolitycznych – mówi. – Na świecie coraz częściej mamy do czynienia z wojnami, przemocą, przestępczością i innymi zagrożeniami. Dzieją się rzeczy, na które nie wiemy, jak zareagować, a powinniśmy wiedzieć, jak zachować się w danej sytuacji, aby ocalić siebie i bliskich – dodaje. Autorka pracy deklaruje, że nie inspirowała się bieżącą polityką, od której się dystansuje, jednak w okresie, gdy zastanawiała się nad wyborem tematu pracy inżynierskiej, wiele mówiło się o konieczności tworzenia programów szkoleniowych związanych z samoobroną. – Ważne jest, żeby takie jednostki czy centra szkoleniowe były dostępne nie tylko dla wojska, policji czy straży granicznej, ale żeby każdy mógł podnieść swoje umiejętności w tym zakresie i mógł się czegoś nauczyć. Zagrożenia czyhają nie tylko na froncie – mówi architektka. Tematyka podjęta przez Beatę Cudzich wydaje się, niestety, zgodna z duchem czasu. Konflikty zbrojne między państwami (zawsze przecież istniejące) w cywilizacji zachodniej wydawały się przezwyciężone. Wyobrażenie okazało się złudne i naiwne; wojna stoi u bram zachodniej Europy i jest możliwe, że obejmie tę część kontynentu. Narastają konflikty wewnątrz państw, rosną w siłę separatyzmy, brutalizuje się polityka, a język debaty publicznej podlega swoistej militaryzacji. O obronności, wojnie, zagrożeniach, atakach mówią wszyscy. Pracę nad projektem autorka poprzedziła badaniami nad funkcjonowaniem obiektów szkoleniowych i centrów bezpieczeństwa, ich architekturą i – przede wszystkim – funkcjonalnością. Przeanalizowała m.in. centra szkoleniowe w Dallas (Stany Zjednoczone), Bergen (Norwegia) i Bure (Francja). Wspólną cechą wielu tego typu obiektów (lub kompleksów obiektów) jest to, że funkcjonują zarówno jako bazy ćwiczeń dla wojska i innych profesjonalnych służb, jak też miejsca szkoleń dla cywilów, a nawet, w sytuacji zagrożenia, mogą stać się punktem schronienia dla ludności. Można pokusić się o generalizację, że we współczesnym budownictwie związanym z wojskowością i obronnością trudno jest wskazać jakiekolwiek estetyczne motywy czy formy, które nadawałyby mu specyfikę (w przeszłości architectura militaris wymagała jednak określonych form i należała, w pewnym sensie, do dziedziny kultury). Obiektom związanym z wojskowością bliżej jest do konstrukcji czysto inżynierskich niż do architektury; jest to związane, niewątpliwie, z ogromnym postępem, jaki ma miejsce w technologiach wojskowych. Żadna inna dziedzina nauki i techniki nie rozwija się tak intensywnie. Technologie u zarania wymyślone na potrzeby wojska, z czasem były adaptowane do życia cywilnego, ale świadomość, z jakiego źródła naprawdę się wywodzą, nie jest powszechna w społeczeństwie. Wracając do centrów szkoleniowych – ich architektura, konstrukcja, wewnętrzna struktura i materiały budowlane są wynikiem czystego pragmatyzmu. Naczelną zasadą jest możliwość adaptacji do nieustannie zmieniających się potrzeb, procedur, systemów i technologii. Sednem tych obiektów jest elastyczność. Zmianom w czasie podlegają też sposoby zdobywania wiedzy i nabywania umiejętności, więc obiekt o bardzo sztywnie określonym programie będzie utrudniał ewolucję zachodzącą w samym procesie szkoleń. Można przyznać rację autorce nagrodzonej pracy, że współczesne centrum szkoleniowe to przede wszystkim „kompleksowy system adaptowalnych środowisk treningowych”. W jej rozumieniu „budynek nie jest skończonym dziełem, ale musi stać się tworem zdolnym do rekonfiguracji (…), architektura powinna odzwierciedlać tę zmienność, stając się nie tyle »bytem«, co »stawaniem się«, a centra szkoleniowe, strzelnice, poligony, pełnowymiarowe przestrzenie symulacji zdecydowanie wykraczają poza proste, monofunkcyjne schematy”. W projektowaniu tego typu obiektów pojawiają się trudności związane ze sprzecznymi lub pozornie sprzecznymi wymaganiami: obiekt powinien łatwo podlegać adaptacji, a jednocześnie, co zrozumiałe, w sytuacji konfliktu czy wojny – musi być trwały. Z kolei wymóg bezpieczeństwa może stać w sprzeczności z postulatem dostępności (w przypadku użytkowania obiektu przez ludność cywilną). – Projektowany budynek musi być zarówno elastyczny w użytkowaniu, jak odporny – mówi autorka. Zdaniem architektki, głównym zadaniem przy projektowaniu obiektów szkoleniowych jest transformacja przestrzeni o cechach statycznych w przestrzeń, której cechą jest „dynamiczna adaptowalność”. Współczesne programy szkoleniowe i treningowe (ćwiczenia fizyczne, symulacje, szkolenia teoretyczne) wymagają od środowiska zdolności do modyfikacji. Sama przestrzeń powinna być „środkiem aktywizującym”, który pozwala przekraczać granice między różnorodnymi formami treningowymi. Przekłada się to na efektywność szkoleń teoretycznych i praktycznych. Jeśli chodzi o wybór materiałów budowlanych, należy kierować się ich odpornością i wydajnością. W środowisku narażonym na obciążenia mechaniczne, uszkodzenia czy nawet zniszczenie, wytrzymałość materiałów jest kluczem do stworzenia przestrzeni bezpiecznej i użytecznej. – W ujęciu teoretycznym przyszłością centrów szkoleń byłyby przestrzenie hybrydowe, mobilne, przygotowane na ekstremalne wymagania; projektowane w duchu architektury kinetycznej i adaptacyjnej – tłumaczy architektka. Centrum szkoleniowe zaprojektowane przez Beatę Cudzich zostało zlokalizowane w Rząsce, na granicy Krakowa i gminy Zabierzów, przy drodze prowadzącej w kierunku węzła Balice na autostradzie A4, w bezpośrednim sąsiedztwie 11 Małopolskiej Brygady Wojsk Obrony Terytorialnej. Projektowany budynek składa się z trzech modułów. Moduł centralny został zaprojektowany na rzucie okręgu, pozostałe dwa na rzucie prostokątów. Obiekt został podzielony na trzy strefy edukacyjne: strefę szkoleń praktycznych, strefę szkoleń teoretycznych i strefę strzelań na poziomie -1, z krytą strzelnicą o długości 50 m (dodatkowo przewidziano strefy administracji, gastronomii, wypoczynku i magazynów). Całość obiektu zamyka się w rzucie o wymiarach 90,66 x18,75 m. – Założenie projektowe oparłam na trzech wytycznych: przejrzystości układu, adaptacyjności przestrzeni i modularności. Są to kluczowe pojęcia, jeżeli mówimy o funkcjonowaniu obiektu zdolnego do ewolucji w czasie i przestrzeni – mówi architektka. Mimo że projekt centrum szkoleniowego wyraża czystą racjonalność, architektka nie odmówiła sobie przyjemności wprowadzenia do projektu pewnej symboliki. Rzeźbiarskim i cyzelowanym elementem budynku jest strefa wejściowa zaprojektowana w formie walca. Kształt tej struktury ma odzwierciedlać tarczę strzelecką. – Geometryczną strukturę tarczy przełożyłam na kompozycję architektoniczną. Było to wyzwanie, ponieważ walec jest centralnym elementem obiektu, gdzie zbiega się kilka ważnych funkcji, które musiałam połączyć w logiczną całość – tłumaczy autorka. Moduł centralny na planie koła, któremu Beata Cudzich poświęciła wiele uwagi, zgodnie z intencją autorki można odczytywać metaforycznie. Jego forma kojarzy się z czymś zamkniętym (obroną, niedostępnością, twierdzą), ale również z czymś, co łączy, jednoczy. Budynek powstał z betonu, ale nie chodziło tylko o efekt surowości. – Kluczowymi aspektami w budowie stref szkoleniowych, takich jak strzelnice, jest zapewnienie odpowiedniej nośności i szczelności konstrukcji, zabezpieczenie przed przebiciem, drganiami, zapewnienie izolacyjności akustycznej oraz spełnienie wymagań z zakresu bezpieczeństwa pożarowego – mówi Beata Cudzich. – Poza tym budynek z betonu jest statyczny, monumentalny i poważny, niczego nie udaje i symbolizuje to, czym jest – dodaje. Bryła centrum szkoleniowego jest oparta na horyzontalnych podziałach, których proporcje wprowadzają porządek i czytelność. Elewacje zaprojektowano w oparciu o powtarzalne moduły i rytmiczne otwory; dzięki temu budynek można rozbudować o kolejne segmenty bez uszczerbku dla formy. Korten na elewacjach ma podkreślać surowość obiektu. Zdaniem architektki beton jest materiałem trochę tajemniczym, nie do końca nieprzewidywalnym. – Na pewno jest niepowtarzalny, wytrzymały i ma monumentalny charakter. Można z niego uzyskać każdą formę. Wbrew pozorom może być też ekologiczny, a tego aspektu trochę się obawiałam, przystępując do projektowania – podsumowuje autorka nagrodzonej pracy.
Konkurs jest efektem współpracy Wydziału Architektury Politechniki Krakowskiej i Stowarzyszenia Producentów Cementu. Kryterium oceny prac jest wartość architektoniczna oparta na walorach estetycznych i konstrukcyjnych betonu. Na konkurs nadesłano 35 prac dyplomowych z 10 wydziałów architektury (20 prac inżynierskich i 14 prac magisterskich). Do dalszych obrad jury nominowało 16 projektów. Wyróżnienia otrzymali: inż. Paweł Mordeja za pracę „Kryształ Ziemi Rybnickiej – ośrodek aktywności lokalnej dedykowany tradycjom wydobycia i obróbki gipsu w Czernicy” (promotor: dr inż. arch. Marek Lamber), Wydział Architektury Politechniki Wrocławskiej; inż. Karolina Cierpich za pracę „Budynek mieszkalny wielorodzinny w Krakowie” (promotor: dr inż. arch. Marcin Głuchowski), Wydział Architektury Politechniki Krakowskiej; arch. Daniel Jarmoc za pracę „Adaptacja i rozbudowa Wydziału Prawa Uniwersytetu w Białymstoku” (promotor: prof. dr hab. inż. arch. Jerzy Uścinowicz), Wydział Architektury Politechniki Białostockiej.Na uroczystości byli obecni m.in. prorektorzy Politechniki Krakowskiej: prof. Magdalena Niemczewska-Wójcik, prof. Katarzyna Bizoń i prof. Marek Bauer; dziekan WA PK prof. Magdalena Kozień-Woźniak, prodziekan WA PK prof. Tomasz Kozłowski; dyrektor marketingu i public affairs Stowarzyszenia Producentów Cementu mgr inż. Zbigniew Pilch; specjalista ds. zrównoważonego rozwoju SPC mgr inż. Paulina Gos-Błaszczyk; prezes SARP Odział Kraków arch. Magdalena Buczyńska-Zapała; przewodniczący Rady MPOIA RP arch. Marek Kaszyński.
Jury konkursu obradowało w składzie: dziekan Wydziału Architektury Politechniki Krakowskiej prof. dr hab. inż. arch. Magdalena Kozień-Woźniak (przewodnicząca); dziekan Wydziału Architektury Politechniki Białostockiej dr hab. inż. arch. Tatiana Misijuk, prof. PB; dziekan Wydziału Architektury Politechniki Poznańskiej dr hab. inż. arch. Agata Gawlak, prof. PP; dziekan Wydziału Architektury Politechniki Śląskiej dr hab. inż. arch. Tomasz Bradecki, prof. PŚ; prof. dr hab. inż. arch. Tomasz Kozłowski (komisarz konkursu); dyrektor marketingu i public affairs Stowarzyszenia Producentów Cementu mgr inż. Zbigniew Pilch. Wysokość nagród pieniężnych: 5000 zł dla autora każdej z nagrodzonych prac; 2000 zł dla autora każdej z wyróżnionych prac; 2000 zł dla promotora każdej z nagrodzonych prac. Nagrodzeni otrzymali dyplomy i statuetki zaprojektowane przez prof. Dariusza Kozłowskiego.
Paweł Pięciak
Galeria Zdjęć






































